【全文公開】鎌倉 三河屋本店の文化的・建築的価値を記した調査報告書

こんにちは、鎌倉 三河屋本店の鈴木です。
今回は、鎌倉 三河屋本店プロジェクトを進めていくうえで、三河屋本店の歴史を紐解き、建物の文化的・建築的価値を示してくれた、私たちのバイブルとも言える書籍をご紹介します。

今から約13年前。平成25年に鎌倉市より刊行された「鎌倉市景観重要建築物等指定調査報告書」です。
こちらには、鎌倉市が景観重要建築物等に指定している建築物の学術的な建築調査が詳細に記載されています。
その第22号に三河屋本店が掲載されており、その情報を頼りに保存活用計画の申請を行ってきました。
このような素晴らしい資料を残された鎌倉市の都市景観課の皆さまに頭が下がります。

 

今では販売終了となっており、一般に読むことが難しくなってしまったため、三河屋本店のプロジェクトを預かる立場として、ぜひ皆さんにもご覧いただけたらと思い、全文を公開させていただきます。

学術書となるため、読みにくい部分もあるかもしれませんが、鎌倉 三河屋本店の建物がいかに文化的価値が高いのかが記載されており、その価値を皆さんに少しでもお届けできたらと思いました。

 

例えば、

「この史料は戦前の鎌倉の民間建築の工事に関する希少な第一次史料であり、その史料的価値はきわめて大きい。」

「若宮大路沿いの戦前の創建になる商店建築としてはもちろん、鎌倉全体の戦前商店建築の代表でもある。」

「神棚、掲額、先述の扁額など、付帯施設も雰囲気を大いに高めており、半ば生きた博物館的な様相を呈している。」

「三河屋酒店の建物は主屋、蔵、そしてトロッコ用レールと、戦前の店舗兼住宅の建築がワンセットになってそのまま生きて用いられており、建築史的にも民俗史的にもきわめて貴重な存在といえる。」

などと記述されています。
そして、この調査報告書の最後は、このように締めくくられています。

「棟木の墨書や「新築工事控」という建築関係書の存在もあり、建設年・建設費用・大工名などが資料的に明らかな点もはなはだ貴重である。これらの資料がすべて揃っている民家建築は希少な存在である。もちろん、若宮大路の都市景観上最も重要な建物でもあり、その存在の意味はきわめて大きい。それが故であろう、この建物はこの通りを歩く多くの人々の足を1度は止めさせる力をもっているのである。」

 

鎌倉市景観重要建築物等指定調査報告書 三河屋本店

【建築概要】

建築名: 三河屋酒店
指定: 三河屋本店 指定第22号
所在地: 鎌倉市雪ノ下一丁目
竣工年: 昭和2年10月
設計・施工: 金子卯之助(大工)
構造: 木造2階建て、和小屋組
   蔵は木造平家(中二階付)、洋小屋組(キングポスト・トラス)
規模: 1階 210.86㎡、2階 141.78㎡、計 352.64㎡  蔵 83.88㎡
屋根: 桟瓦葺き切妻および寄棟。蔵は波板鉄板葺き切妻屋根
壁: 簓子(ささらこ)下見、一部土壁。蔵は土壁、腰部は鎌倉石積み
基礎: 石造基礎、一部コンクリート布基礎。蔵は石造布基礎

 

【沿革】

三河屋酒店は、明治33年以来この地で酒店を営んでいた竹内福蔵(1869か1870-1927)が、関東大震災で倒壊した建物に代えて、昭和2年に建てたものである。この建設年の根拠は、棟木の墨書および「昭和二年 新築工事控 弐月より」と表書きされた和綴の帳面の存在である。墨書は、住宅棟の南北に通る棟木の下端部に北側から「上棟 昭和二年六月二日 竹内福蔵」と記されたものであり、「新築工事控」は、昭和2年2月から10月までの各月の工事経費を項目別に細かに記したものである。この二つの史料により、三河屋酒店が昭和2年2月に起工し、6月に上棟し、同年10月に竣工したことがわかる。

「新築工事控」の内容をもう少し詳しく記すと、
「大工 金子卯之助」と記された大工費用が2月から10月にわたり総計1953円69銭、
「左官峰太郎」と記された左官費用が6月から10月までに総計で287円98銭、
「石直殿」と記された石工費用と覚しきものが9月を除く5月から10月までの総計で170円80銭、
「鳶由五郎」と記された鳶職費用が2月から8月までの総計で487円50銭、
「銅費」と記された金属工事関係と覚しき費用が6・7月で総計83円80銭、
「建具屋」と記された費用が5月から10月までの総計で741円80銭、
「材木店拂」と記された材木費用が3月と5月の総計で1394円84銭、
「雑用出」と記された床柱や丸桁などの特殊な材料、釘や壁土や漆などの材料、それに上棟式のための費用等を加えた諸々の費用が月日を伴わずに羅列され総計1682円57銭、
そして総費用が7444円40銭となっている。総費用として記された額は各費用の合計とは合わないが、一応これが記された通りである。

この「新築工事控」によると、工事は施主の直営で行われたことになる。もちろん実際に建てたのは主として大工であろうが、設計・施工を通して施主の関与がかなりあったものと思われる。

また、この史料は安斎商店の「建築費用帳」とともに戦前の鎌倉の民間建築の工事に関する希少な第一次史料であり、その史料的価値はきわめて大きい。建築物の文化財指定の場合には当然「付(つけたり)」となるべきものである。ついでながら、安斎商店の建設費が1113円であったことを考えると、規模の大きさを考慮しても三河屋酒店が相当に高価な建物であったことがわかる。

三河屋酒店は、現存の建物の創建後まもなくの昭和5年の福蔵の逝去後も、2代目かね(1878か1879-1950、福蔵の妻)、3代目章三氏、4代目正三氏へと受け継がれており、建物自体も大きな改造を受けずに今日に至っている。

右から2番目。「昭和二年 新築工事控 弐月より」と表書きされた和綴の帳面

 

墨書は住宅棟の南北に通る棟木の下端部に北側から「上棟 昭和二年六月二日 竹内福蔵」と記されている

 

【施主竹内福蔵と大工金子卯之助】

竹内福蔵は昭和5年5月29日に57歳で亡くなっているが、島武史『商人のふるさと紀行』(東明社、1993年)によれば東京は浅草の出身だという。昭和45年まで横浜の野毛にあったという三河屋酒店の当主竹内平兵衛の次女かねの婿となって、鎌倉に分店を開いたのが明治33年。三河屋の屋号は横浜の店に由来するようだが、結局横浜の店よりも長く存続することとなった。

鬼瓦や冷蔵庫室の妻壁などに描かれた山のマークを二つ重ねた下に漢数字の十一を組み合わせた商標「入り山十一」は、野沢屋の「入り九」の商標をもじったものらしいが、「十一」は平兵衛が11歳の時に11文を懐に郷里蒲郡を出てきたことに因むとも、買値の11倍で売るべきという商売の極意に因むともいう。

また、店舗正面に掲げられた扁額の「三河屋」の字は臨済宗建長寺派管長で建長寺住職であった菅原時保(じほう、号は曇萃軒、道号は寿仙 1866-1956)の書に基づくものという。

現在の三河屋は福蔵の54歳の時の造営になるものであるが、上述の「新築工事控」が示すように、彼はこの建物を直営で建てており、設計についてもいろいろ希望を述べたに違いなく、この建物の造営は福蔵の精魂をかけた大仕事と見なされるのである。実際、福蔵が建物に関して種々厳しい要求をするので前の大工が逃げ出し、金子卯之助が背負うことになったと、卯之助の子息の夫人金子久枝氏が記憶しておられる。

福蔵のその大仕事を引き受けて実際に建てたのが、上述の大工の金子卯之助、左官の峰太郎、鳶の由五郎、そして石工の直某であったが、もちろん中心は金子卯之助であろう。金子卯之助は昭和25年1月9日に68歳で亡くなっている。したがって、三河屋を建てたのは45歳のころ、働き盛りの仕事ということになる。若宮大路沿いには、戦前創建の店舗兼住宅がいくつか現存するが、規模的にも意匠的にも代表的な存在が三河屋と湯浅商店であり、この二つが共に金子卯之助の仕事ということであるから、今日の若宮大路の歴史的景観の形成に彼は大きく貢献していることになる

三河屋本店 初代当主 竹内福蔵氏とかね氏。一階座敷にて撮影。

 

【建築的特徵】

三河屋酒店は若宮大路の西側、二の鳥居と三の鳥居の中間よりやや北側に、東側(より正確には東南東だが、以下便宜のためこれを東として記す)に店舗正面を向けて建つ。間口5間、奥行き8間の二階建ての大規模な出桁造りの建物であり、若宮大路沿いの戦前の創建になる商店建築としてはもちろん、鎌倉全体の戦前商店建築の代表でもある。

伝統的な出桁造りの商店としては長谷の萬屋本店が知られているが、三河屋は規模的にこれを大きく上まわる。奥行八間を前後に2分して平行に2つの棟をかけ、前方を切妻、後方を寄棟としたやや珍しい屋根のかけかたをしている。総2階ではあるが、前方店舗部分の2階は小屋組をそのまま見せ、間仕切りの建具もなく、正面には窓もない倉庫状の空間であり、正面からの外観は建ちの高い平家のようにも見える。実際、棟の高さも後方の住居部分の寄棟のほうが高い。しかし、外観上最も目立つのは切妻の前方店舗部分である。この店舗部分は、奥行半間の下屋を取り込み、その下屋庇と切妻大屋根とが重畳し、重厚な雰囲気を醸し出す。外観の意匠上の特徴もこの店舗部分に集中している感がある。

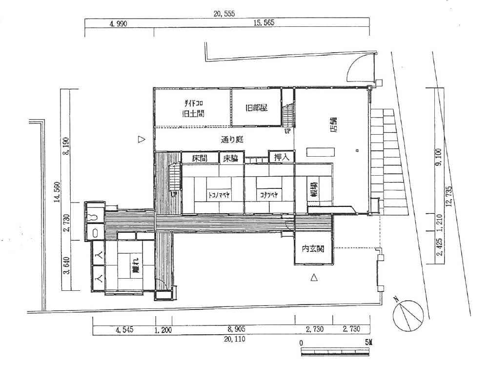
1階のプランは、半間の下屋を取り込んだ奥行三間が土間の店舗であり、この部分の西南隅に六畳大の帳場を設ける。店舗後方は住居部分で、中央北寄りに通り庭が通り、北側を台所・食事室、南側を十畳と八畳の2室の居室としている。そして西南隅に八畳の離れを突出して設けている。

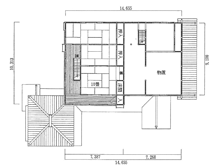
2階は前方部分が先述の通り倉庫状空間、後方は十畳と七・五畳の部屋に十五畳大の鞘の間状の部屋の3室からなる。

外観のみならず、内部の意匠においても店舗部分が最もよく意が用いられている。すなわち、店舗部分は、太い根太(ねだ)を見せた重厚な根太天井、正面の長大な指鴨居、当初のものではないけれどもフローリングの床など、伝統的な商店建築の魅力を十全に見せてくれるのである。それに神棚、掲額、先述の扁額など、付帯施設も雰囲気を大いに高めており、半ば生きた博物館的な様相を呈している。

2階後方の座敷の部屋

 

1階店舗部分。天井の太い根太(ねだ)を見ることができる

 

以上が主屋に関する記述であるが、つぎに敷地の西北隅、主屋の後方北部に主屋にほぼ平行して建つ蔵について述べておこう。これは三間×八間二尺の平面規模をもつ切妻屋根をかけた平家で、平入り 。庫室を三間一尺幅の2室と二間幅の1室の3室に分け、中央の庫室に中二階を設けている 。小屋組はキングポスト・トラスである 。一商店の蔵としては、相当な規模の、しかもメンテナンスのよい蔵であるが、主屋の北側面からこの蔵の南側面へとやや曲がりながら、かつ西方奥へと少しレベルを上げながらトロッコのレールが東西に30メートル強走っており、驚くべきことにこれが現在も使われているのである。

このように、三河屋酒店の建物は主屋、蔵、そしてトロッコ用レールと、戦前の店舗兼住宅の建築がワンセットになってそのまま生きて用いられており、建築史的にも民俗史的にもきわめて貴重な存在といえる。

 

【おわりに】

三河屋酒店は鎌倉の戦前商店建築を代表するものである。伝統的な出桁造りの建物で、主屋・蔵・トロッコ用レールなど戦前の商店の姿が一揃いそろってそのまま用いられており、建築史上のみならず一般の歴史上においても非常に重要な建築である。

棟木の墨書や「新築工事控」という建築関係書の存在もあり、建設年・建設費用・大工名などが資料的に明らかな点もはなはだ貴重である。これらの資料がすべて揃って民家建築は希少な存在である。もちろん、若宮大路の都市景観上最も重要な建物でもあり、その存在の意味はきわめて大きい。それが故であろう、この建物はこの通りを歩く多くの人々の足を1度は止めさせる力をもっているのである。

末尾になったが、実測調査に快く応じて下さり、かつ貴重な資料・談話を提供してくださった竹内正三氏ご夫妻をはじめ竹内家の方々に深く感謝したい。と同時に、この貴重な建物を使用方まで含めてよく維持してこられ、加えて「新築工事控」などの希少な史料を大切に保管してこられたご努力に深く敬意を表したい。また、金子卯之助について教えて下さった金子久枝氏にも感謝する次第である。

 

別添資料

1階平面図

 

2階平面図

 

正面図

 

側面図